ZDRUŽITEV DVEH STANOVANJ

O PROJEKTU ZDRUŽITEV DVEH STANOVANJ:

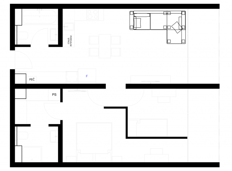
Tlorisna velikost mansarde (neto): 61,10 m2
Trajanje načrtovanja: 1 meseca
Trajanje prenove: 3 mesece
Prenova od začetka do konca: 4 mesece

Tloris končnega stanja

Želja investitorja je bila, da se povežeta dve manjši stanovanjski enoti, da bo udobno za bivanje mlade družine. Po ogledu obstoječega stanja smo se dogovorili, kje bo potekal preboj in kako bomo organizirali prostore. Z ozirom na nosilne stene smo zasnovali stanovanje, ki je prostorno in deluje kot celota.  

Vhod v prenovljeno stanovanje smo uredili v enoti 1. Predprostor se v neprekinjeni liniji prelije v kuhinjo in dnevni prostor. V stanovanju sta dve kopalnici s straniščem. Ob vhodu je kopalnica s kopalno kadjo in straniščem, ki je namenjeno tudi gostom. Druga kopalnica je zasebna in je v povezavi s spalnico. Z razliko od prve, je ta opremljena s tuš kabino. Prehod med enotama smo pozicionirali tako, da je z minimalnim predprostorom omogočen direkten vhod v otroško sobo na eni strani in spalnico na drugi. Spalnica ima del, ki sega do zunanje zasteklitve. S tem smo pridobili naravno svetlobo in ustvarili manjši delovni kotiček. Na mestu, kjer je bil vhod v drugo enoto (predprostor), smo preuredili garderobno sobo in pralnico, preko katere je omogočen odprti dostop do zasebne kopalnice.

Podrsajte sredinski gumbek levo in desno za pregled prej in potem 😉 

Before After
Before After
Before After

Galerija